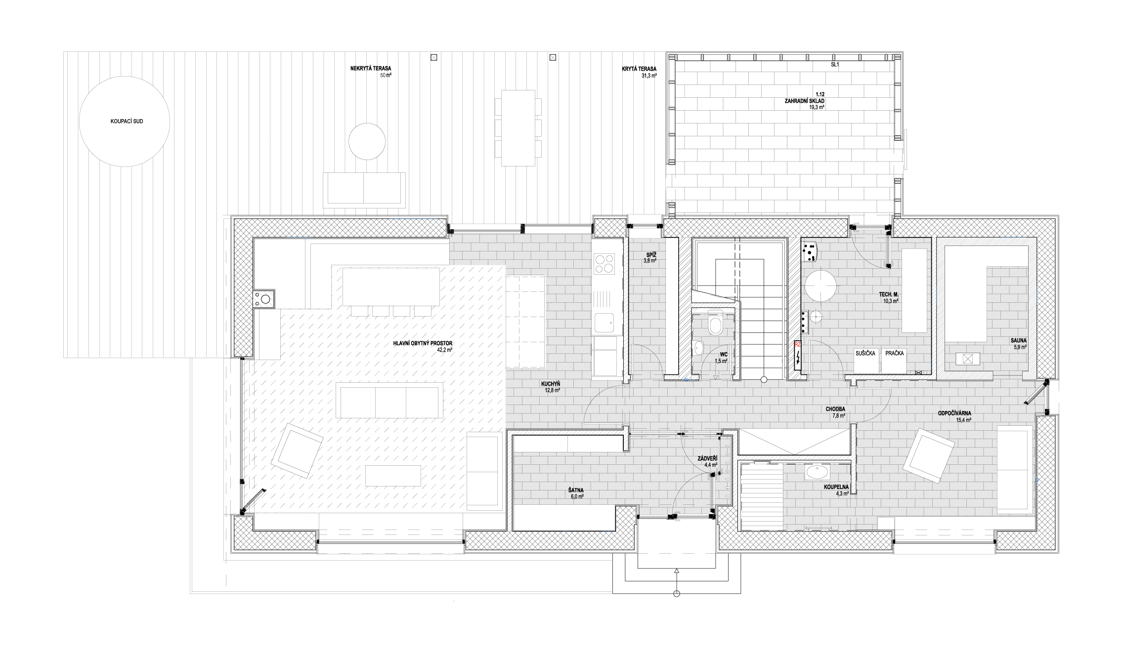
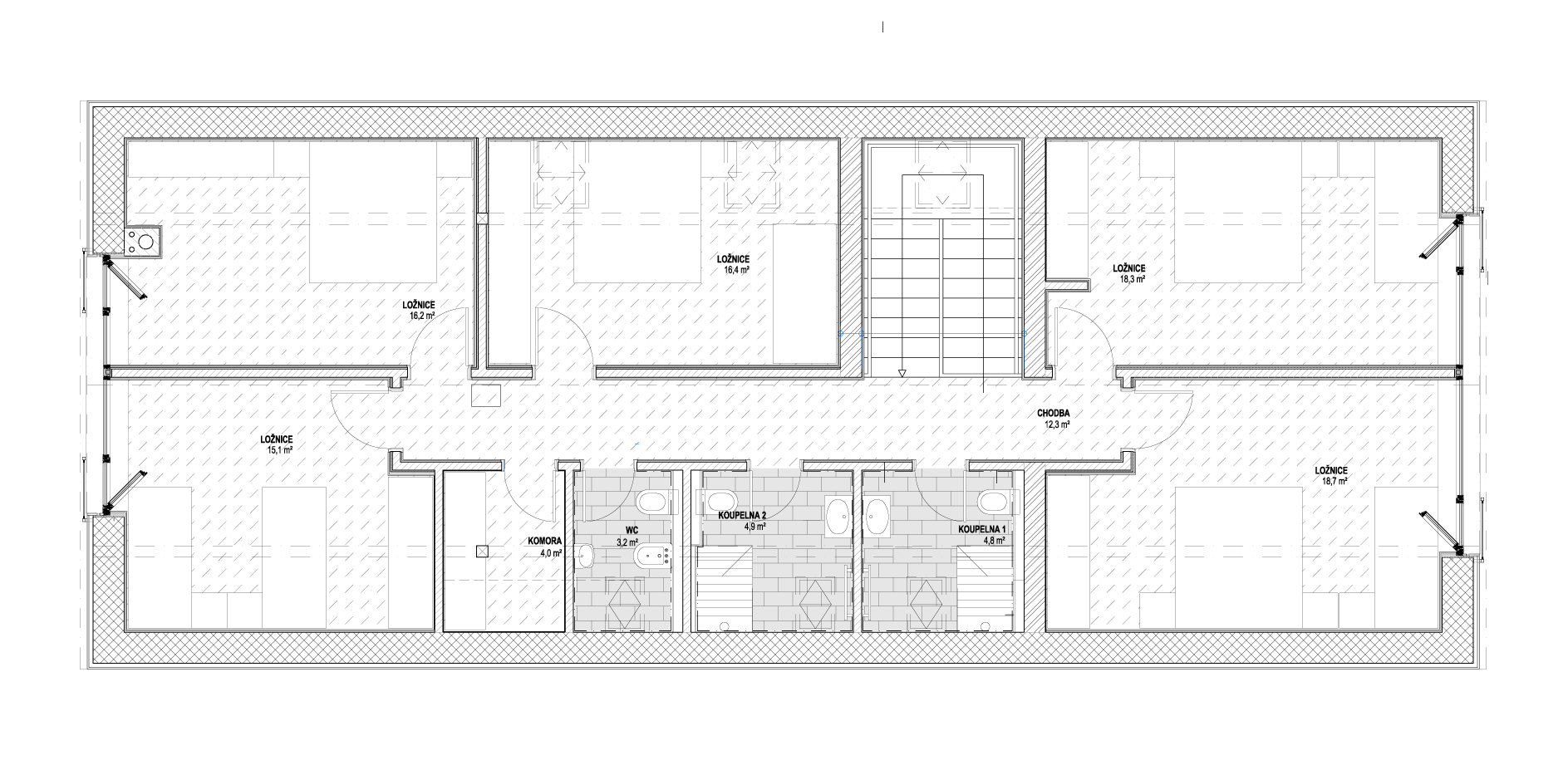
Interiér chaty