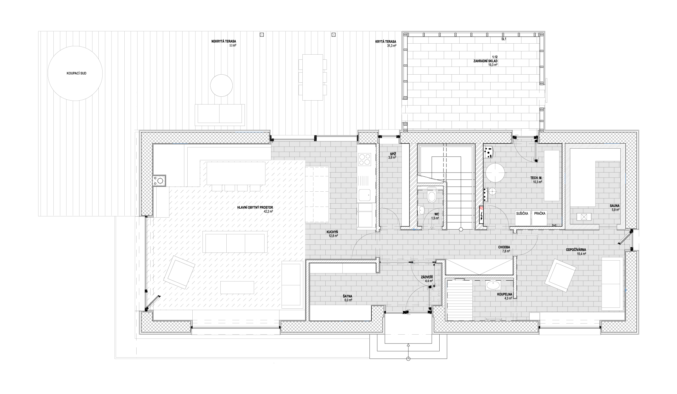
Interiér chaty